服務熱線13598663687
立即咨詢






關鍵詞:提升設備,振動設備,給料機,科豪機械設備描 述:新鄉市科豪機械有限公司位于河南第三大城市,豫北的經濟、文化和交通中心。該公司是一家集設計、研發、生產制造于一體的**企業,主要從事提升、振動、給料等設備的生產研發。電話:朱經理 13598669591
在線咨詢斗式提升機
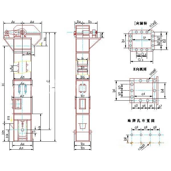
一、斗式提升機產品概述:
斗式提升機是適用于垂直輸送磨琢性較大的粉狀、粒狀、及小塊狀物料的提升機,如糧食、煤、水泥、碎礦石等,斗式提升機輸送高度可達40m,斗式提升機其特點為:結構簡單,運行平穩,掏取式裝料,混合式或重力卸料,輪緣采用組合鏈輪,更換方便,鏈輪輪緣經特殊處理壽命長,斗式提升機下部如采用重力自動張緊裝置,能保持恒定的張力,避免打滑或脫鏈,同時在料斗遇阻時,有一定的容讓性能夠有效地保護運動部件,斗式提升機物料溫度不超過250℃。
二、斗式提升機主要特點:
1、斗式提升機運行平穩、輸送效率高。
2、斗式提升機料斗形式多,應優先選用。
3斗式提升機適應性強、安裝維修方便、壽命長。
4、斗式提升機整機體積小、轉速高、確保快速均勻輸送。
三、斗式提升機工作原理:
斗式提升機由運動部分(料斗與牽引鏈條)、帶有傳動鏈輪的斗式提升機上部區段、帶有拉緊輪的斗式提升機下部區段、斗式提升機中間機殼、斗式提升機驅動裝置、斗式提升機逆止制動裝置等組成。該斗式提升機的料斗為間斷式布置,利用“掏取法”進行裝載,“離心投料法”卸料。該斗式提升機的牽引機構是兩根環形鏈條。
四、主要技術參數:
型號 | TD160 | TD250 | TD315 | TD400 | ||||||||||||||||
料斗形式 | Q | H | Zd | Sd | Q | H | Zd | Sd | Q | H | Zd | Sd | Q | H | Zd | Sd | ||||
輸送量(m3/h) | 5.4 | 9.6 | 9.6 | 16 | 12 | 22 | 23 | 35 | 17 | 30 | 25 | 35 | 24 | 46 | 41 | 66 | ||||
斗寬(mm) | 160 | 250 | 315 | 400 | ||||||||||||||||
斗容(L) | 0.5 | 0.9 | 1.2 | 1.9 | 1.3 | 2.2 | 3.0 | 4.6 | 2 | 3.6 | 3.8 | 5.8 | 3.1 | 5.6 | 5.9 | 9.4 | ||||
斗距(mm) | 280 | 350 | 360 | 450 | 400 | 500 | 480 | 560 | ||||||||||||
帶寬(mm) | 200 | 300 | 400 | 500 | ||||||||||||||||
斗速(m/s) | 1.4 | 1.6 | 1.6 | 1.8 | ||||||||||||||||
物料**大塊(mm) | 25 | 35 | 45 | 55 | ||||||||||||||||
功率(KW) | 4/5.5/7.5 | 5.5/7.5/11 | 7.5/11/15 | 11/15/18.5/22 | ||||||||||||||||
減速器 | ZQ35/ZQ40 | ZQ40/ZQ50 | ZQ40/ZQ50 | ZQ50/ZQ65 | ||||||||||||||||
型號 | TD500 | TD630 | D160 | D250 | D350 | D450 | ||||||||||||||
料斗形式 | Q | H | Zd | Sd | H | Zd | Sd | Q | S | Q | S | Q | S | Q | S | |||||
輸送量(m3/h) | 38 | 70 | 58 | 92 | 85 | 89 | 142 | 4.7 | 8 | 18 | 22 | 25 | 42 | 50 | 72 | |||||
斗寬(mm) | 500 | 630 | 160 | 250 | 350 | 450 | ||||||||||||||
斗容(L) | 4.8 | 9.0 | 9.3 | 15 | 14 | 14.6 | 23.5 | 0.65 | 1.1 | 2.6 | 3.2 | 7 | 7.8 | 14.5 | 15 | |||||
斗距(mm) | 500 | 630 | 710 | 300 | 400 | 500 | 640 | |||||||||||||
帶寬(mm) | 600 | 700 | 200 | 300 | 400 | 500 | ||||||||||||||
斗速(m/s) | 1.8 | 2 | 1 | 1.25 | 1.25 | 1.25 | ||||||||||||||
物料**大塊(mm) | 60 | 70 | 25 | 35 | 45 | 55 | ||||||||||||||
功率(KW) | 15/18.5/22/30 | 22/30/37/45 | 1.18~1.86 | 4.2~5.9 | 5~6.5 | 7.5~9.8 | ||||||||||||||
減速器 | ZQ50/ZQ65 | ZQ68/ZQ75 | ZQ40 | ZQ40 | ZQ40 | ZQ50 | ||||||||||||||











新鄉市科豪機械設備有限公司
電 話:13598663687 13598669591
傳 真:0373-5858791
辦公室地址:人民路和西環交叉口向北150米路西
廠區地址:人民路和西環交叉口向北150米路西
乘車路線:乘坐146公交車到金穗大道牧野大道站下車
郵 箱:xxkh968@163.com
網 址:http://m.hhic.net.cn